시공사례

Main Background
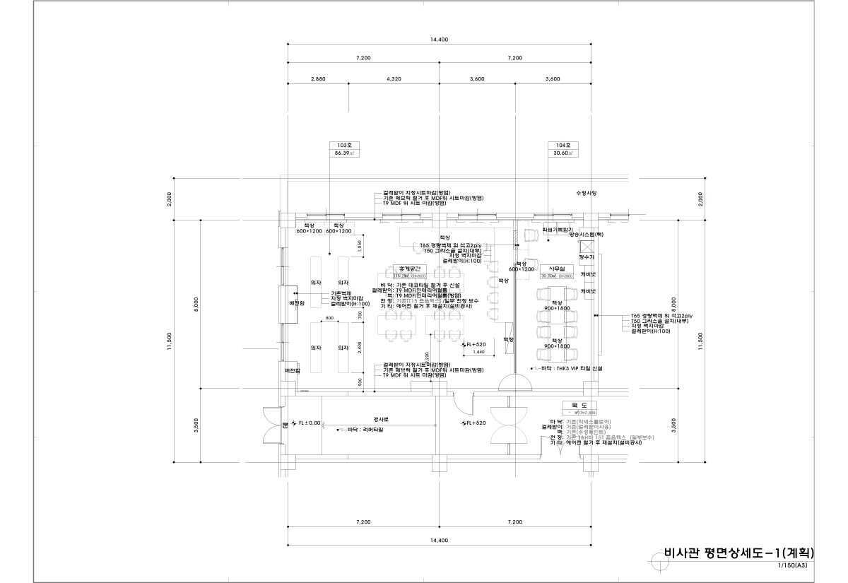
설계 및 감리

계명대학교 한국산업인력공단

Scroll
Category 설계 및 감리 / 설계
Usage 공공기관
Space 지하1층, 지상 5층
Area 1,964㎡
Period 2024.03.-2024.04.
궁금한 점, 매니저가 도와드릴게요